Gebrauchtanlage
Baujahr 2023
Zustand: wie neu, Anlage hat nur wenige Betriebsstunden
Ausstattung und technische Daten:
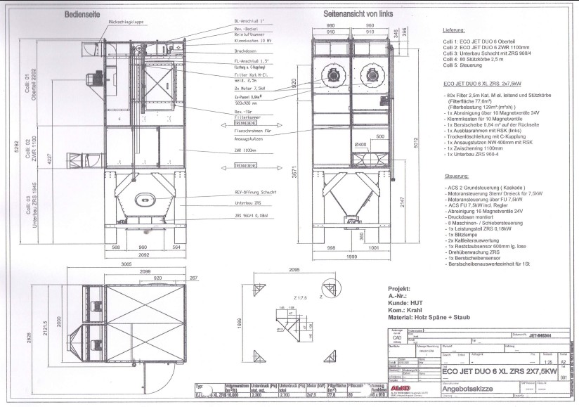
- Stationäre Reinluftfilteranlage ECO JET DUO 6 XL ZRS 2 x 7,5 kW
- Zur Absaugung von Holzstäuben und -spänen
- Ventilator: 2 x 7,5 kW
- Volumenstrom: 10.000 m³/h bei
- Unterdruck: 2.700 Pa (total) / 2.200 Pa (statisch)
- Filter: 80 Stk à 2,50 m
- BIA Kategorie M, elektrisch leitend
- Filterfläche: 77,6 m²
- Filterflächenbelastung: 129 m³/(m²xh)
- Filterabreinigung:AL-KO OPTI JET®
- Druckentlastungsflächen: 0,84 m² (Berstscheiben)
- Unterbau mit Schüttschacht und Zellenradschleuse
Trockenschleusung mit C-Kupplung
bestehend aus:
- ECO JET DUO 6 OBERTEIL, 2 x 7,5 KW:
Reinluftfilteranlage;
2 x 7,5 kW Ventilator;
AL-KO OPTI-JET Filterreinigung;
inkl. Druckentlastungsflächen und
Trockenschleusung mit C-Kupplung;
ohne Filter und Steuerung;
inkl. Druckdosen
- ECO JET DUO 6 ZWR XL - 1100 MM:
Zwischenring für Expansionserhöhung
bzw. Geräteerhöhung
mit 2 Ansaugöffnung für Ansaugstutzen
- Unterbau mit Schüttschacht
und eingebauter Zellenradschleuse
960/1 FG:
zur Entsorgung der Späne über bauseitigen
Transportventilator in vorhandenes Silo oder
ähnliches
Transportleitung DN 200 mm, ca. 1.260 mm
lang unter der Zellenradschleuse, Anschluss
an Transportleitung bauseits
Zellenradschleuse zertifiziert nach ATEX-
Direktive 94/9/EG
Technische Daten ZRS 960/1FG:
CE 0588 Ex II 1D/-
(Gerät Innen/Außenbereich);
EX D (Schutzsystem); FSA 11 ATEX 1614X
Motorleistung:
0,18 kW / 0,78 A
3 Ph / 400 V / 50 Hz
Schutzart/ Bauform:
IP 54 / B3
Isolationsklasse:
F
Drehzahl:
41 U/min
Förderleistung*:
15.744 l/h*
Zellenzahl:
7 Stück
Einlauf-/Auslaufquerschnitt:
960 x 250 mm /
960 x 208 mm
Abmessungen (BxTxH):
1.100 x 605 x 330 mm
Temperaturbereich:
bis 50°C
*abhängig vom Material
- FILTER & STÜTZKORB 2,5 / KAT M EL
WEIß
FILTER ECO JET DUO 6:
80 Stück benötigt
Filter BIA Kategorie M elektrisch leitend;
2,50 m lang, inkl. Stützkörbe;
77,6 m² Filterfläche
- Ansaugstutzen 400 mm:
mit Rückschlagklappe im Rechteckkanal
- ECO JET Rückstauklappe
910X346x500
- Schaltschrank AL-KO Control System:
GRUNDSTEUERUNG ACS II MIT
TOUCHSCREEN DISPLAY:
Grundeinheit für eine Kaskadenschaltung
von 2 Ventilatoren mittels FU bis max. 37
kW; entsprechende Leistungsstelle und
Ansteuerungen sowie der
Frequenzumrichter sind in der Grundeinheit
enthalten; Der FU ist im Schaltschrank
eingebaut
Kaskadenschaltung mit FU-Übergabe:
Ventilator 1 läuft am FU, bei Erreichen des
Schwellwertes Umschaltung in Netzbetrieb;
Ventilator 2 übernimmt FU und regelt nach
Bedarf;
Grundfunktionen:
Steuerspannung 24 V
Touchscreen-Display, ST 1200 Steuerung,
Netzteil Sitop Power, Sammelstörmeldung
Anzeige Störmeldung als Klartext im
Display und Sammelstörlampe in der Tür
Manueller Start der Austragung über
Display-Taster
Start Abreinigung über Differenzdruck
Manueller Start der Abreinigung über
Taster
Nachreinigung
Überwachung Brandschutzklappe
Signalauswertung Reststaubsensor
Signalauswertung Füllstandmelder
Start über externen potentialfreien Kontakt
Überwachung max. Druck im Filter
Betriebsstundenzähler
Anzeige Wartungsintervall
Schaltschrankbeleuchtung
Schaltschrankbelüftung
- Abreinigung:
10 MAGNETVENTILE einzeln angesteuert
- Maschinenerkennung:
SCHIEBERSTEUERUNG 4ER GRUPPEN:
Maschinen- und Schieberansteuerung über
Ansteuerung von 4 Maschinen mittels
potentialfreiem Kontakt (PFK) oder
Induktionsspule und 4 Absperrschiebern
24 V DC (motorisch mit EIN-DRAHT-
STEUERUNG oder elektropneumatisch);
max. 4 Platten in Reihe pro Förderstrang
für bis zu 8 Maschinen
- Leistungsteile für Austragungselemente:
Zeitparameter am Touch-Display einstellbar
LEISTTEIL ZRS BIS 0,18 kW
- Überwachung / Signalelemente:
BERSTSCHEIBENSENSOR
BERSTSCHEIBENAUSWERTE-EINHEIT
DRUCKTRANSMITTER FUER FU
DRUCKDOSEN MONTIERT KPL
BLITZLAMPE STOERANZEIGE
2xKaltleiterauswertung
FL / RL SCHALTUNG (24V DC)
Umschaltung Fortluft / Rückluft Sommer/
Winterbetrieb
nur notwendig bei Rückführung der
gereinigten Rückluft in den Arbeitsraum
Drehüberwachung Zellenradschleuse
Filterwächter / Reststaubüberwachung
mit Auswerteeinheit,
erforderlich bei Rückluftführung in den
Arbeitsraum nach DIN EN 12779 und H3
(Die Re